IL FORMATO IFC : cos’è, come funziona e perché NON C’È PERDITA DI DATI

IFC ARCHICAD BIM SOLIBRI Quantity Take Off

 

La migliore descrizione di cosa sia l’IFC è probabilmente questa: un formato di dati aperto, neutrale ed interoperabile. Ed è infatti la definizione presente nel sito di buildingSMART, il consorzio che sviluppa il formato file.

Analizzando questa definizione in dettaglio apprendiamo che l'IFC è:
• Un formato di dati
A titolo d’esempio, sono formati di dati: .dwg, .dxf, .doc, .xls, .jpg, ecc. Insomma, al pari di quelli elencati, l’IFC è un sistema di codifica digitale dell’informazione pensato per la codifica di modelli informativi tridimensionali.
• Aperto
È quel formato di dati la cui specificazione tecnica di codifica dell’informazione è stata pubblicata e di conseguenza può essere utilizzata ed implementata da chiunque.
• Neutrale
Significa che lo sviluppo del formato IFC non è controllato da nessuna società, azienda o ente specifico, in particolar modo non è controllato dalle case produttrici di software. Per quanto, fra i membri di buildingSMART, figurano le principali software house: Autodesk, Nemetschek, Trimble, Dassault Systems.
• Interoperabile
Conseguenza diretta di quanto scritto sopra l’IFC, in quanto formato di dati aperto, è attualmente implementato dai principali software BIM e per questa ragione costituisce uno strumento che consente a tutti gli attori del processo di comunicare informazioni tramite un linguaggio comune. L’IFC infatti rappresenta una delle fondamenta dell’OpenBIM, il movimento originariamente avviato dalle case software Trimble e GRAPHISOFT il cui “unico obbiettivo è quello di promuovere flussi di lavoro a collaborazione aperta per ottenere dei progetti meglio coordinati”.

Il formato IFC nasce nel 1995 dal consorzio buildingSMART, conosciuto inizialmente con il nome di International Alliance of Interoperability: un’associazione internazionale, senza scopo di lucro, di cui fanno parte molte aziende del mondo del software delle costruzioni.

L’adozione e la diffusione di standard è uno dei principali obiettivi che si è posta l’organizzazione fin dalla sua fondazione. Le varie definizioni e metodologie infatti, sono state recepite e normate dall’International Organization for Standardization (ISO) nelle norme:
IFD – ISO 12006-3: data models (Information Framework for Dictionary)
specifica le informazioni del modello che possono essere inserite nel Dictionary indipendentemente dalla lingua utilizzata;
IDM -ISO 29481: process definition (Information Delivery Manual)
specifica la metodologia che integra i processi produttivi nell’edilizia con l’obiettivo di favorire la condivisione tra tutte le maestranze incluse nel processo;
• IFC - ISO 16739: dictionary terms (Industry Classes Foundation)
definisce lo schema concettuale del formato IFC.

 

IFC ISO 16739 ARCHICAD BIM

 

Il formato IFC nasce e si sviluppa a partire dal linguaggio EXPRESS definito dalla norma “ISO 10303-11”. Questo linguaggio nonostante sia molto compatto, permette di gestire diversi tipi di dati e di specifiche. La struttura del file è di natura STEP (Standard for the Exchange of Product model data). In definitiva, un file IFC (avente estensione .ifc) è un file in formato ASCII scritto in linguaggio EXPRESS, linguaggio standard per la modellazione parametrica e per la descrizione di un prodotto utilizzando la struttura STEP.

Il linguaggio EXPRESS è stato sviluppato, a partire dal 1994, da Douglas Schenck e Peter Wilson per la descrizione di prodotti industriali e, grazie all’ampiamento delle librerie e delle funzioni, è ora esteso anche alla descrizione di edifici e infrastrutture. Può contare su due principali tipi di rappresentazione: la prima lessicale dove un file in formato ASCII ne descrive tutte le proprietà, l’altra è una rappresentazione grafica definita EXPRESS-G. Il più generico elemento definito attraverso il linguaggio EXPRESS viene definito come “schema”. Secondo la terminologia riportata anche nella normativa ISO gli schemi di dati definiscono la struttura e i tipi di associazioni esistenti fra i dati. Uno schema quindi rappresenta un insieme di entità, attributi e istanze di tipo relazionali tra oggetti.

L’utilizzo di questi standard permette di descrivere informazioni relative all’intero ciclo di vita di un prodotto (product life cycle) indipendentemente dall’applicativo software utilizzato. Da un punto di vista informatico il vantaggio dell’uso della struttura STEP risiede nel fatto che le informazioni vengono riconosciute da diversi protocolli e che tutti i dati possono essere condivisi in un modello tridimensionale.
Ogni file IFC creato per il settore delle costruzioni raggruppa le definizioni dei vari componenti edilizi in entità spaziali seguendo un concetto gerarchico ben definito e vengono classificati e racchiusi dall’entità astratta IfcBuildingElement. Come ogni elemento BIM, anche queste entità coniugano una rappresentazione geometrica a una descrizione delle proprietà. Ne consegue che ogni oggetto reale, che può essere descritto tramite un’entità IFC, deriva dall’entità IfcProduct secondo la seguente scomposizione gerarchica:

 

IFC product IFC element BIM Archicad

 

A partire dal 1996 si è proceduto al rilascio di diverse versioni: in particolare dall’IFC1 si è passati all’IFC1.5.1, IFC2.0, IFC2x, IFC2x2, IFC2x3 fino ad arrivare all’attuale IFC4.
Dall’anno 2000, con il rilascio della versione IFC2x, non è stata più modificata la struttura logica: infatti l’organizzazione del formato è rimasta la medesima e le versioni rilasciate successivamente sono un arricchimento e miglioramento delle diverse specifiche. Questo ha permesso di avere un formato più flessibile e soprattutto ha consentito, alle diverse software house, di passare da una versione IFC ad un’altra in modo abbastanza agevole.
Il formato IFC è diventato oggi di diritto uno standard internazionale di interscambio tra software BIM come, per fare un paragone un po’ semplicistico, è stato il DWG per l’interscambio di documenti 2D.

L’IFC è un formato di scambio dati in grado di supportare tutte le proprietà, anche quelle non presenti nello standard. Quindi, l’eventuale perdita di dati, può unicamente dipendere dai differenti meccanismi attraverso i quali i software di authoring scelgono quali proprietà includere, o non includere, nell’esportazione e come le proprietà interne di detti strumenti sono messe in correlazione (mappate) con le proprietà IFC.

È quindi importante analizzare i metodi utilizzati in un file IFC per la descrizione geometrica di un solido e, conseguentemente, le opzioni disponibili in un software BIM per l’esportazione in tale formato:
• SweptSolid
viene generato un solido per estrusione o rivoluzione di un elemento bidimensionale;
• AdvanceSweptSolid
viene generato un solido per estrusione o rivoluzione lungo una direttrice generica;
• Brep
solido definito dalla composizione di superfici definite da linee che vengono a loro volta determinate da un listato di punti. In questo caso non si avranno direttamente le informazioni riguardo le dimensioni della sezione o della lunghezza dell’elemento;
• AdvancedBrep
solido rappresentato in maniera analoga al Brep ma avente superfici definite da generiche curve nello spazio;
• CGS
rappresentazione del risultato dell’operazione booleana (somma o sottrazione) tra solidi o tra un solido e un semispazio;
• Clipping
differenza booleana tra solidi estrusi o tra un solido e un semispazio;
• BuondingBox
rappresentazione tridimensionale attraverso la definizione di un elemento di delimitazione nello spazio;
• SectionedSpine
rappresentazione per estrusione di un elemento avente sezione variabile;
• MappedRepresentation
rappresentazione di oggetti che seguono una serie di punti.

Per dimostrare come nell’esportazione in formato IFC un modello risulti corretto sia nella geometria che nella quantità dei materiali da costruzione e, soprattutto, NON ci sia perdita di dati abbiamo predisposto un semplice modello:
- 2 muri esterni
- 1 tramezzo interno
- 1 pilastro
- 1 solaio
Ciascun elemento da costruzione è stato creato con una stratigrafia abbastanza tipica (cliccare sulle immagini per ingrandirle):

 

quantity take off BIM Archicad Solibri 01

 

 

quantity take off BIM Archicad Solibri 02

 

 

quantity take off BIM Archicad Solibri 04

 

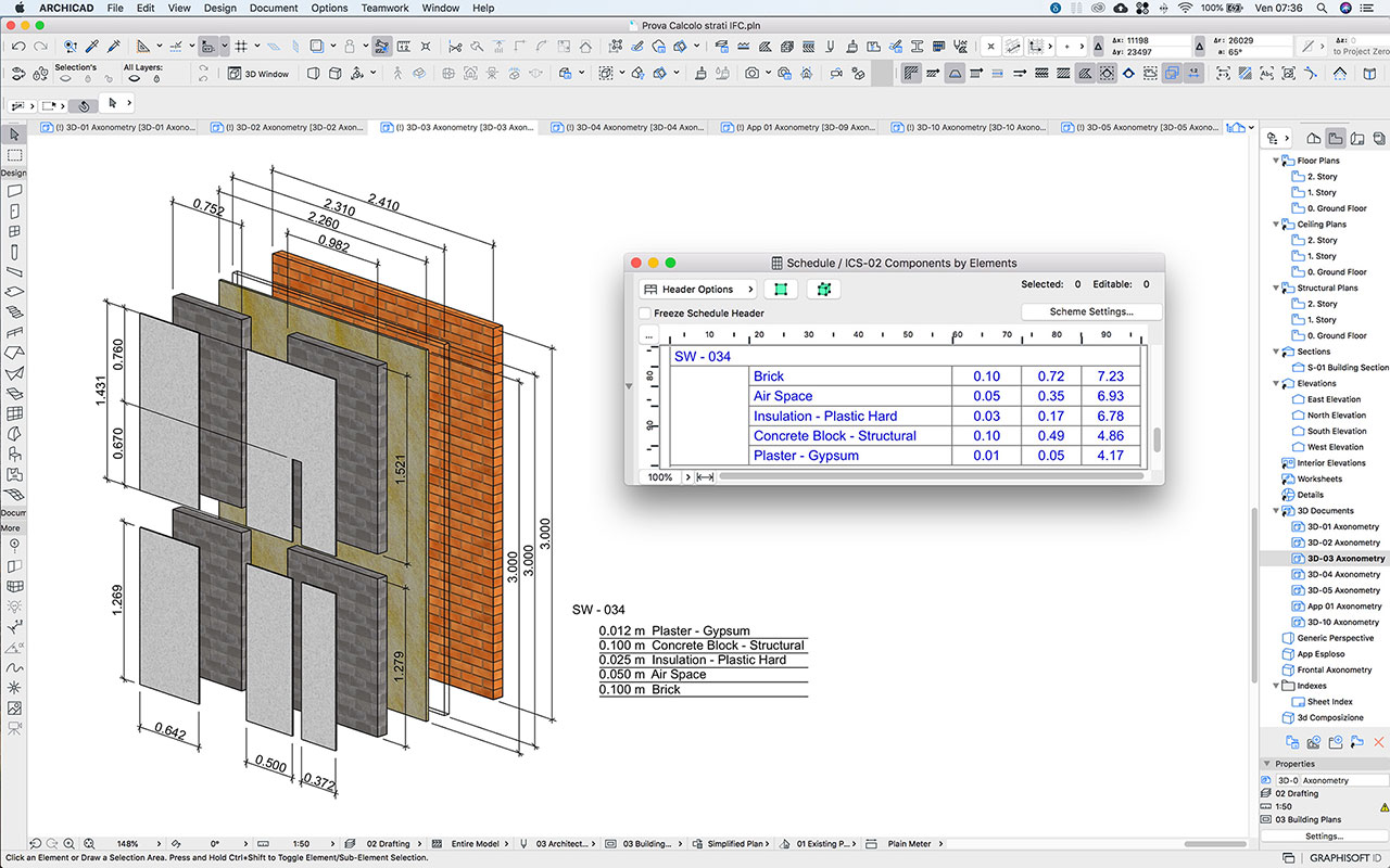
L’immagine sottostante vuol inoltre mostrare la precisione ed esattezza della computazione dei materiali da costruzione in ARCHICAD per cui, quotando dimensionalmente i vari elementi, sarà possibile calcolare manualmente le quantità di ciascun elemento edilizio così da poter verificare come la funzione “priorità di intersezione dei materiali” del software incida, in modo intelligente e automatico, nella sottrazione delle quantità dei vari elementi quando questi vengano a contatto con altri con priorità maggiore:

 

quantity take off BIM Archicad Solibri 05

 

quantity take off BIM Archicad Solibri 03

 

Da tutto ciò si evince che questa caratteristica di ARCHICAD permette di calcolare ESATTAMENTE, e senza alcun errore, la quantità di materiale presente in ciascun progetto/modello BIM e permette, ad esempio, nel caso se ne abbia necessità di calcolare l’esatto quantitativo di calcestruzzo in una fondazione, o in un solaio in latero-cemento, anziché affidarsi al solito calcolo per incidenza.

Le immagini seguenti mostrano l’importazione del modello ARCHICAD, tramite il formato IFC, all’interno del software Solibri Model Viewer così da poter verificare la NON-PERDITA dei dati geometrici riferiti anche, e soprattutto, alle quantità dei singoli materiali che compongono il pacchetto stratigrafico di ciascun elemento da costruzione:

quantity take off BIM Archicad Solibri 06

 IFC_Wall (Muro)

 

 

quantity take off BIM Archicad Solibri 07

IFC_Column (Pilastro)

 

 

quantity take off BIM Archicad Solibri 08

IFC_Slab (Solaio)

 

 

CONCLUSIONI
Con questi semplici esempi abbiamo voluto mostrare come nell’esportazione in formato IFC non ci sia perdita di dati e come il modello risultante non solo sia identico all’originale, ma mantenga anche le quantità dei singoli strati dei materiali.

Per ultimo vogliamo sottolineare come sia falsa l’affermazione, circolante in certi ambienti, che un file IFC non sia interoperabile, ovvero non sia modificabile all’interno di qualsivoglia software BIM, sottintendendo che il formato IFC sia paragonabile a un formato di sola lettura senza possibilità di modifica. Queste sono affermazioni totalmente false che si basano esclusivamente sul fatto che alcuni software, scrivono e/o leggono male il formato IFC per propri limiti intrinsechi.

Potete verificare voi stessi ciò che abbiamo illustrato in questo esempio. È infatti sufficiente creare un qualsiasi modello in ARCHICAD, andare poi nel menu "Archivio-->Salva con Nome" e scegliere queste impostazioni:
Formato: File IFC
Traduttore: Esportazione Generale

Se riaprirete il file IFC così esportato con ARCHICAD, vi accorgerete che potrete modificare, senza alcun problema, tutti gli elementi presenti nel modello IFC.

Per completezza vi invitiamo a fare la medesima prova con altri software BIM in modo da verificare che le quantità mostrate siano effettivamente corrette come quelle mostrate da ARCHICAD. In molti casi vi renderete conto delle differenze tra le quantità che calcolate manualmente e le quantità mostrate dal software BIM. Per cui, va da sè, che non tutti i software BIM sono precisi e corretti come ARCHICAD nel calcolo delle quantità dei materiali da costruzione del modello.

 

Buon BIM a tutti !

 

Arch. Roberta Cecchi - Arch. Mario Sacco

 

Chi è online

Abbiamo 1295 ospiti e 3 membri online

Utenti iscritti al sito

89579